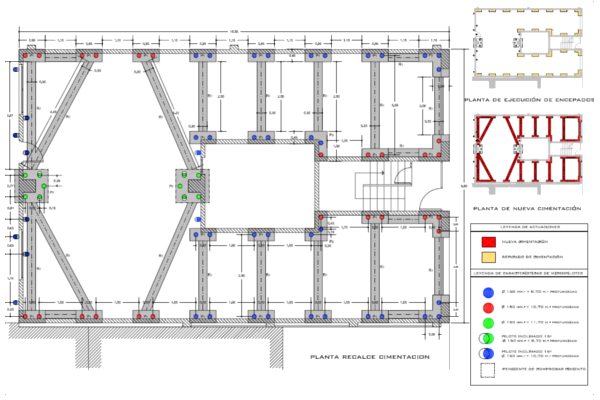
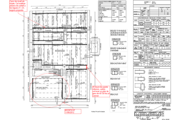
CÀLCUL D’ESTRUCTURES I REFORÇOS

Tenim experiència en el càlcul d’estructures de nova edificació, naus industrials, reforços de forjats, reforços de bigues, reforços de pilars, estintolaments (apeos), reforços de fonamentació, i murs de contenció.

Hem realitzat estructures per suportar dipòsits, màquines i grues.

També, calculem estructures per arquitectura efímera.

 

ALGUNS EXEMPLES D'ESTRUCTURES CALCULADES:

Cargando galería...

2014 © CREOWEBS. Diseñamos y creamos